본 연구는 서울시립대 정책과제로 진행되었고, 책임연구자 김형준 교수님과 건축공학 권기혁 교수님 및 관계 기술사, 건축사 등과 협력으로 진행되었다.
연구 대상은 서울시립대학교 내의 대표 조적조 건축물인 경농관, 박물관, 자작마루이며, 이 세 건축은 근 대 건축의 사료적 가치가 크고, 전시공간, 수장고, 다목적 강당 등으로 현재 활용되고 있어 내진성을 확보를 위한 보수 및 보강이 요구된다.
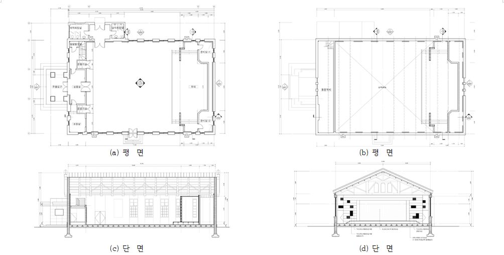
우리 대학 내 대표 조적조 건축물인 경농관, 박물관, 자작마루는 착한벽돌집이라는 뜻의 선벽원으로 일컬어지기도 한다. 대상 건축물은 우리 대학의 전신인 경성공립농업학교 시기인 1937년 건립되었으며, 당시 경농관은 대학본관, 박물관은 교실, 자작마루는 대강당으로 사용되었다. 일제강점기의 학교 건축물로서 현재 서울시립대학교 내에서 가장 오래된 조적벽체와 목조트러스 구조로 된 건물이다. 따라서 그 역사적 의미가 깊고 보존가치가 높기 때문에, 서울시는 대상 건축물 중 경농관과 자작마루를 미래 세대를 위해 보존할 가치가 있는 유형 자산인 서울미래유산으로 지정하였다. 경농관, 박물관, 자작마루는 모두 지상 1층인 건축물로, 건축면적은 각각 1,260, 535, 453 m2이다.
대상 건축물은 건립 이후 대략 70여년 동안 지속적인 개보수 작업이 이루어졌으며, 2012년부터 2013년까지 이루어진 리모델링 공사를 통해 현재와 같은 내형 및 외형을 가지게 되었다. 리모델링 공사는 당초 명원종합건축에서 설계용역을 시행하였으나, 역사적 상징공간 및 문화적 공간으로 조성하는 동시에 건립 당시 모습에 가까운 수준의 리모델링 공사를 할 수 있도록 우리 대학 건축학부 이충기 교수의 디자인 및 공사과정에 대한 지원을 통해 재료 및 디자인 변경, 공사 감리가 이루어져 현재의 모습을 갖추게 되었다. 주요공사는 천장 마감재의 철거, 기존 목조 트러스의 구조보강, 소화용 스프링클러 신설, 냉난방공사, 외벽 단열공사 및 고파벽돌 치장쌓기, 내벽 모르타르 제거 등을 포함하였다. 특히 기존의 천장 마감재를 철거하여 목재 트러스를 노출시킴으로써, 미적 조화와 함께 중력 하중에 대한 구조적 안전성을 확보하였다.현재 경농관은 전시실, 서울학연구소, 수장고로, 박물관은 전시실, 자작마루는 다목적 강당으로 사용되고 있다.
그림 1 ~ 3의 도면 및 사진을 통해 대상 건축물의 공간 이용 실태 및 주요부 구조, 마감, 설비 등을 포함한 실내 건축 현황을 확인할 수 있다.





우선 경농관의 홀은 기존목조트러스가 최대한 보존되어 있고, 서울학연구소 및 전시실로 이르는 문이 좌우로 위치하고 있으나, 서울학연구소로 연결된 복도로만 접근 가능하도록 운영되고 있다. 전기통신 트레이는 스틸커버로 마감되어 최대한 건물의 외벽을 따라 배치되고 있으며 조명, 스프링클러, 화재감지기, 전열교환기, 냉난방 설비가 공간 상부에 설치되어 있다. 실내 벽체는 고벽돌 마감으로 전반적으로 이루어져 있으며, 제1전시실은 석고보드 위 백색 페인트 마감으로 이루어져 있다. 수장고는 항온항습 시설을 갖추고 각종 자료들을 보관하고 있기 때문에 수장고의 내진보강공사를 시행하기 위해서는 수장고 내부 자료들의 안전한 운반과 보관에 대한 검토가 수반되어야 한다.
박물관은 현재 홀, 사무실, 전시공간으로 크게 구성되어 있으며, 사무실과 홀 사이의 벽체는 유리로 이루어져 있고 홀 및 사무실과 전시 공간 사이의 벽체는 자작나무 합판 마감으로 처리되어 있다. 전체적으로 목재트러스가 노출되어 있으며 조명, 스프링클러, 냉난방설비가 천장공간에 설치되어 있다. 전시공간 내부의 벽 재료는 리모델링 공사 당시에는 고벽돌 치장쌓기로 마감되어 있었으나, 전시 설치에 따라 현재는 석고보드 가벽들이 외벽을 따라 설치되어 있다. 전시공간 내부에는 내외부 반입이 어려운 전시용 캐비넷들이 위치하고 있으므로, 내진보강 공사시 이러한 캐비넷들의 내부 이동 및 보관에 대한 검토가 요구된다.
자작마루는 다목적강당으로 활용되고 있으며, 다른 건물들과 마찬가지로 외벽은 고벽돌치장쌓기로 마감되고, 공간과 공간을 분할하는 내부벽의 마감재로는 자작나무 합판 마감이 적용되어 있다. 바닥과 무대가 목재마루로 이루어져 있으며, 상부는 기존목조 트러스를 노출하고, 조명 및 전기통신 트레이, 스프링클러 등이 천장에 설치되어 있다. 자작마루는 경농관 및 박물관에 비해 상대적으로 높은 층고를 가지고 있으며 냉난방 설비는 천장형이 아니라, 홀과 강당 사이의 벽체에 벽감 공간을 만들어 그 안에 두고 있으며, 무대 뒤 공간에는 온풍기 등의 각종 설비가 위치하여 있다.
공간 이용실태 및 현 구조를 분석하여 구조보강방안을 다음과 같이 제시하였다.




'Research' 카테고리의 다른 글
| FGF Block Prototyping (3) | 2023.02.08 |
|---|---|
| Oysterete (1) | 2022.10.04 |
| Thermo-shading (3) | 2020.08.05 |
| SMP Deployable Structure (1) | 2019.10.23 |
| 청년공간문화플랫폼시범사업 (0) | 2019.04.06 |