노원구 사회적경제지원센터 제3관 설계공모 제출안
이 프로젝트는 지난 수년간 지속적으로 가져왔던 프로그램에 대한 관심에서 그 설계공모에 지원하였으나, 공모지침과 가이드라인에서 요구되는 건축면적, 대지와 건축의 법적 제한 사항, 그리고 행정복합타운의 도시계획구상의 제약은 프로그램이나 공간에 대한 새로운 개념에 기초한 구상과 계획을 불가능하게 하였다.
이것이 설계공모에 임하는 건축가의 주요한 고민지점이다.
노동복합시설이나 이문고가 등의 설계공모안을 작성할 때에는 당선되지 않아도 좋으니, 건축가로서 제시할 수 있는 개념을 한가지 정도는 시험해보자는 자세로 임했던 데에 반해, 지난 2년간 공공건축의 현황과 건축가의 임무와 책임에 대한 고민을 통해, 정량적인 요구조건을 해결하여 설계안에 녹여내는 것은 건축가가 지켜내야하는 최소한의 의무인 동시에 기본전제라고 생각하게 되었다.
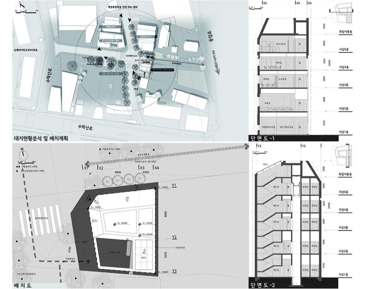
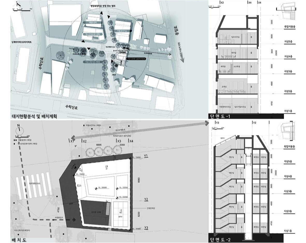
그리하여 본 설계안에서는 대지-법규-면적의 해석에서 가능한 범위에서 제시할 수 있는 적정선을 지켜내는 것이 목표였다. 그에 따라 프로그램에 대한 적극적 해석이나 면적을 확보하기 위해 가장 먼저 포기되어야 하는 공간의 분절 등은 과감하게 생략하고, 가장 크게 필요한 실과 층의 면적을 기준으로 오픈 가변형 플랜이 가능하도록 단순하되, 효율적인 평면을 제시하였다.
대신, 그렇게 묶여버린 매스의 상부에 대해서는 법규제약과 재생에너지를 도구로 활용하여 형태의 변화를 꾀하고자 하였고, 덩어리감으로 구성된 두가지 다른 질료가 서로 엮여 보이도록 디자인을 구성하였다. 그리고 그 두 개의 다른 덩어리는 프로그램의 성격을 대변한다고 볼 수도 있다.
이 프로젝트의 결과물은 제약 변수들로 건축의 가능한 경계와 둘레를 확정짓고 그것의 껍데기를 새로운 재료와 형태 언어로 제시하고자 한 노력이다.





연도 Year: 2019
유형 Type: Competition Submission
위치 Location: Seoul, Korea
'Design > Architecture' 카테고리의 다른 글
| 중화2동 상생마을관리사무소 (0) | 2023.02.08 |
|---|---|
| Convergent & Divergent Sanctuary (5) | 2021.03.02 |
| 아름다운청년 전태일기념관 (0) | 2019.04.08 |
| GROOVE (3) | 2019.04.06 |
| FRONT FLEX (2) | 2019.04.06 |