노동복합시설 조성 건물 리모델링 설계공모 [당선작]

서울시 공공건축가 5인을 지명하여 이루어진 "노동복합시설 조성 건물 리모델링 설계공모"에 하우 건축사사무소와 공동응모하여 당선되었습니다.
기존 건물은 1963년 완공된 서울은행 관수교지점 (김정수 설계)으로, 1980년대 외관 리모델링과 5층의 증축이 이루어진 콘크리트 라멘조 건물입니다. 현재의 모습은 1980년대에 흔하게 지어졌던 붉은 세라믹 타일의 대칭형 입면으로 이루어져 있습니다.


새로이 리모델링된 건물은 노동권익센터 등의 업무공간, 청년노동자들의 스터디 및 회의 공간, 시민 편의공간, 전태일 기념관 및 노동관련 전시관, 이동노동자 쉼터로 사용될 예정입니다.

이러한 용도를 위해 설계안에서는 크게 세가지 개념을 제시합니다.
공공성을 위해 "도시와 건물 사이의 대화"를 유도하고, 공간개념으로서 "층과 층 사이의, 유사한 용도 사이의 대화"를 이끌어내며, 가변성과 확장성을 위해 "방과 방 사이의, 사람과 사람 사이의 대화"를 조성하고자 하였습니다.

도시와 건물 사이의 대화는 기존 건물이 지닌 반사유리 및 강한 ㄷ자형 프레임을 해체하여, 청계천을 향해 열린 공간을 구성하고, 위치별 용도와 공간의 특성에 따라 다양한 공공개방시설을 도입함으로서 이루어내고자 합니다.
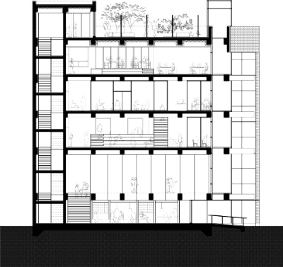
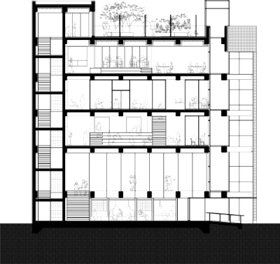
층과 층 사이의, 유사한 용도 사이의 대화는 기존 건물의 적층된 바닥을 일부 해체하여 유사한 성격을 지닌 1-2층, 3-4층, 5-6층 사이의 공간적, 시각적 연결을 유도함으로서 이끌어냅니다.

방과 방 사이의, 사람과 사람 사이의 대화는 천장틀, 조명, 전원, 가구 등이 조합된 공간구성유닛을 통해 1인과 다인 사이, 휴게-회의-업무 등 다양한 소규모 공간의 가변적 활용이 가능하도록 하며, 접이식 칸막이, 스크린, 조명 등을 천장틀과 결합하여 확장형 워크셀을 구성하여, 회의-스터디-세미나-교육-강의 등 6인~30인 규모의 소규모 활동을 지원토록 합니다.


[1층 이동노동자쉼터]

[1층에서 2층 기념관, 전시실로 연결되는 계단]

[2층 기념관, 전시실과 3층 사이의 시각적 연결]

[3층 교육장: 계단형 플랫폼]

[3층 시민편의공간 및 업무공간]

[4층 가변형 회의실, 3-4층 연결계단 및 스터디공간]

[4층 1인 중심의 가변형 스터디공간]

[5층 회의공간과 야외 데크형 오피스의 연결]
연도 Year: 2017
유형 Type: Competition Submission (Winning Entry)
위치 Location: Seoul, Korea
'Design > Architecture' 카테고리의 다른 글
| 아름다운청년 전태일기념관 (0) | 2019.04.08 |
|---|---|
| GROOVE (3) | 2019.04.06 |
| FRONT FLEX (2) | 2019.04.06 |
| BARACK OBAMA PRESIDENTIAL LIBRARY Proposal (0) | 2019.04.06 |
| Dalseong Citizen's Gymnasium Proposal (1) | 2019.04.06 |